Complexo La Fábrica
O apito da antiga fábrica de tecidos deu lugar ao burburinho de pessoas reunidas para celebrar. Esse é o clima do Complexo La Fábrica, localizado no bairro de Villa Morra, em Assunção, Paraguai.
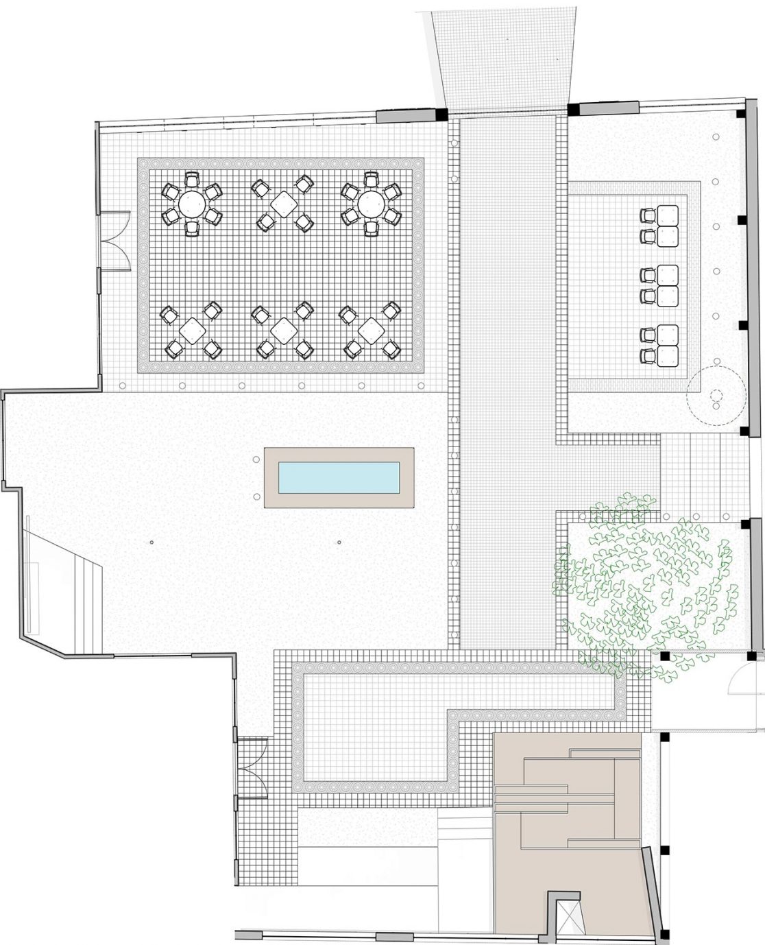
O primeiro projeto da Studio Mind concebido totalmente a céu aberto, tem uma área de 606 metros quadrados e capacidade para até 400 pessoas. O pátio recepciona as pessoas que chegam ao complexo de entretenimento La Fábrica.
Nesse mesmo endereço está situado outro Projeto que contou com a contribuição da Studio Mind, a Cervejaria Palo Santo.
O desafio foi harmonizar a história incorporada nos materiais, o Industrial Style da antiga fábrica de tecidos, com uma linguagem contemporânea. A equipe optou por manter os materiais e estruturas originais da fábrica: como ferros oxidados, tijolos aparentes, madeira e concreto. Uma fonte, com a bomba manual original da época, localizada no centro do pátio, deu um charme especial ao local, assim como o projeto paisagístico assinado pelo parceiro Vinicius Maranini da Plantt Garden Studio.
Ficha técnica
Área construída: 606 m²
Ano: 2017
Status: construído
Local: Assunção – Paraguai
Projeto: Studio Mind Arquitetura – Urbanismo – Planejamento
Obra: PSI Constructora – Marcelo Talavera
Paisagismo: Plantt Garden Studio





