Casa AG
Ale buscava uma casa totalmente funcional, onde nenhum cômodo ficasse sem utilidade. Ele procurava também contato com a natureza e espaço para seus cachorros, que dividiam com ele um apartamento. Esse novo lar deveria ser um lugar especial, para recarregar as energias.
O local escolhido foi o bairro de Surubi’í, local conhecido pelo cuidado com a natureza, localizado na cidade de Mariano Roque Alonso, no Paraguai.
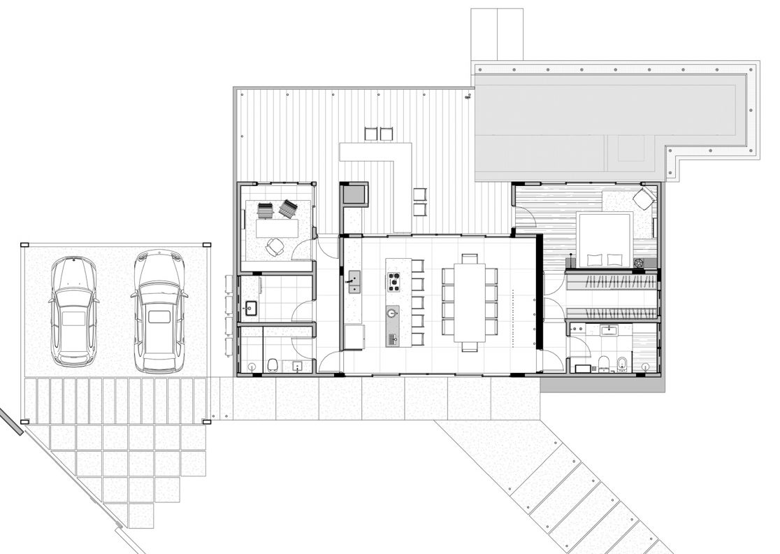
A solução apresentada pela Studio Mind foi um projeto que integrou todos os ambientes da casa: a sala de estar com a cozinha, ambas conectadas com o deck e a piscina. O quarto também foi conectado com a piscina. Nenhum ambiente da casa ficou isolado e sem função.
Esse padrão de ambientes conectados se repetiu no piso superior, um local privilegiado da casa, onde o proprietário pode acompanhar o pôr do sol, com amigos, em um terraço na mesma altura das copas das árvores.
Ficha técnica
Área construída: 160 m²
Ano: 2017/2018
Status: construído
Local: Mariano Roque Alonso, Paraguai
Projeto: Studio Mind – Arquitetura – Urbanismo – Planejamento
Obra: Engenheiro Alejandro Galeano





