Estúdio Bhaskar
O DJ Bhaskar desejava um espaço para criar suas músicas com altíssima qualidade e fidelidade sonora.
Para esse desafio contou com a equipe da Studio Mind. Ricardo, sócio fundador da empresa, já acumulava experiência em projetos acústicos, inclusive com o projeto do estúdio do irmão de Bhaskar, o DJ Alok.
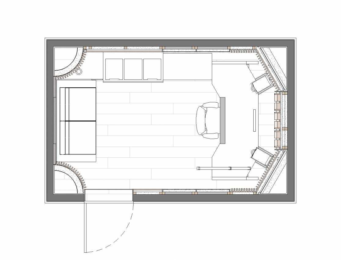
A atenção se concentrou em controlar as reflexões sonoras dentro da sala. “Dessa forma é possível melhorar a inteligibilidade dos monitores de referência”. Conclui Ricardo.
O local para a instalação do estúdio: um cômodo de um edifício comercial no Setor de Armazenamento e Abastecimento Norte em Brasília.
Ficha técnica
Área construída: 23 m²
Ano: 2019
Status: em construção
Local: Brasília – DF
Projeto: Studio Mind – arquitetura – urbanismo – planejamento
Construção e material acústico: Técnica acústica
As paredes do cômodo escolhido, além de serem de concreto, não encostavam em outras paredes do edifício, o que permitiu um tratamento acústico especial e menor investimento em isolamento acústico.




