Palo Santo Brewing Co.
Um jovem empreendedor, apaixonado por cervejas artesanais, decidiu mudar a indústria cervejeira do Paraguai. Assim surgiu a Palo Santo Brewing Co.
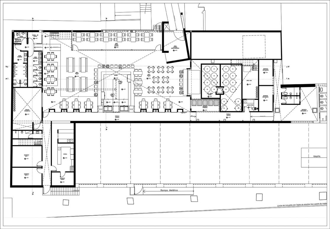
Após uma visita a uma indústria de peças e componentes para produção de cervejas, em Huston, EUA, Giuliano resolveu que em sua cervejaria a produção de bebidas e os barris da fábrica deveriam estar interligados às chopeiras do bar central, por meio de tubos. Esse se tornou um dos diferenciais do projeto da Palo Santo.
O espaço onde foi implantada a choperia já tinha um projeto básico, encomendado pelo proprietário do espaço. A Studio Mind ficou responsável por uma série de adaptações, adequações, consultoria e produção do material de venda e divulgação.
A Cervejaria está localizada dentro do Complexo La Fábrica, outro projeto da Studio Mind, situado no bairro de Villa Morra, em Asunção, Paraguai.
Ficha técnica
Área construída: aproximadamente 800 m² Ano: 2016-2017 Status: construído Local: Assunção, Paraguai Projeto: Arquiteto Miguel Brugada Consultoria: Studio Mind arquitetura – urbanismo – planejamento



